ARCH.iv

vulgo Krienzer - Markterviertel 24/Am Kogl 31 - 8102 Semriach

Beschreibung
Landkarten
Plandokumentation
Fotodokumentation



Plandokumentation  

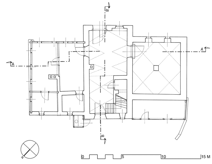
Grundriss EG